Objektnummer: 9731
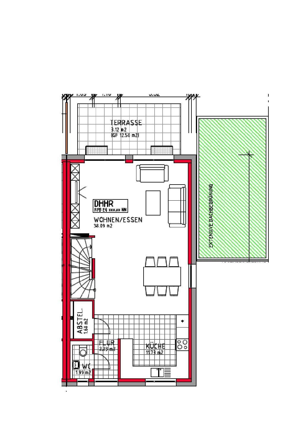
Wohnfläche: 156,57 m²
Grundstück: ca. 231 m²
Zimmer: 4
Kaufpreis: 555.000 €
Fußbodenheizung
Provision: - Keine Käuferprovision -
Endenergiebedarf: 13,30 kWh/(m²*a) A+
Wesentlicher Energieträger: Strom
Luft-/Wasser-Wärmepumpe
Garage

 
  
  
  
  
  
  
  
 
